Bridges with beams of combined cross section made of glued wood and reinforced concrete
- Authors: Lunina A.V.1, Kucheryavaya E.V.1, Averchenko G.A.1
-
Affiliations:
- Peter the Great St. Petersburg Polytechnic University
- Issue: Vol 10, No 2 (2024)
- Pages: 188-199
- Section: Reviews
- URL: https://transsyst.ru/transj/article/view/625423
- DOI: https://doi.org/10.17816/transsyst625423
- ID: 625423
Cite item
Full Text
Abstract
This article focuses on bridges with beams of combined cross section made of glued wood and reinforced concrete. The main purpose of the study is to compare the key characteristics of reinforced concrete, glued wood, and combined bridges. The comparison is based on three main parameters: cost, operational lifespan, and load capacity. The innovation of the use of glued wood in the construction of bridges lies in a combination of the strength and elasticity of wood with the strength and durability of reinforced concrete, which allows you to create more stable and economical structures that can withstand heavy loads. An analysis of the main characteristics of these such bridges allows us to conclude that the advantages of such a combination of materials over other types of bridges. The data obtained can be useful for designers and builders when choosing optimal material for the construction of a bridge structure.
Keywords
Full Text
ВВЕДЕНИЕ
В последние годы наблюдается увеличение интереса к применению древесины в строительстве мостов. Одним из наиболее перспективных решений является сочетание клееной древесины и железобетона. Это комбинированное сечение позволяет достичь оптимального сочетания прочности и долговечности материалов, а также обеспечивает экономическую эффективность строительства и эксплуатации моста. Ниже рассматриваются преимущества и недостатки клееной древесины в строительстве пролетных строений.
ИСПОЛЬЗОВАНИЕ КЛЕЕНОЙ ДРЕВЕСИНЫ
Если применение клееной древесины в мостах в качестве конструкционного материала не вызывает сомнений и реализовано в практике зарубежного и отечественного мостостроения, то целесообразность ее использования в сочетании с железобетоном приходится доказывать на научном и практическом уровне.
Практика отечественного и зарубежного строительства показывает, что в условиях труднопрогнозируемого роста интенсивности транспортных потоков, индустриализации, изменения климата существенно меняется представление о долговечности мостов.
Всесторонняя оценка реальных сроков эксплуатации железобетонных и стальных мостов определила срок их службы в 30–35 лет, деревянных – в среднем 50 лет. Проведенное в США сравнение стоимости постройки мостов из стали, железобетона и дерева показало, что если стоимость деревянного моста принять за 1, то стоимость металлического равна 1,5, а железобетонного – 3,1 [1].
Ученые, инженеры и проектировщики при исследовании и проектировании мостовых конструкций уделяют все больше внимания древесине как материалу, обеспечивающему длительные сроки нормальной эксплуатации моста.
При использовании материала в мостовом сооружении очень важно создать условия для реализации его долговечности. Необходимая долговечность клееной древесины балок может обеспечиваться созданием нормальных условий эксплуатации. Последняя учитывается при разработке полотна проезжей части, исключающего попадание воды с проезжей части на клееные балки. Защита древесины от увлажнения является необходимым условием ее длительной работы, поскольку при насыщении волокон до влажности 20% и более начинается активная биологическая деятельность – гниение древесины.
Широко распространенная дощато-гвоздевая плита с течением времени теряет первоначальную сплачиваемость дощатого набора вследствие расшатывания гвоздей при воздействии подвижных нагрузок. Клеевая деревоплита со временем также теряет плотность набора, вследствие расшатывания швов. При обследовании состояния клееной древесины в мостовом сооружении было определено, что в четырех из шести обследованных мостах разрушена деревоплита.
ПРИМЕНЕНИЕ ЖЕЛЕЗОБЕТОННОЙ ПЛИТЫ
Применение железобетонной плиты в мостах с балками комбинированного сечения из клееной древесины позволяет решить ряд проблем, возникающих при эксплуатации пролетного строения моста.
В случае применения железобетонной плиты выполняются не только защитные функции с созданием комфортных условий для клееной древесины балок, но и существенно лучше деревянных плит распределяется временная нагрузка на проезжей части.
Эффективность использования железобетонной плиты увеличивается, если ее объединить с деревоклееными ребрами различного вида связями. По данным [2], высота клееных балок уменьшается в 1,5 раза, а скалывающие напряжения – в 2 раза в случае объединенного комбинированного сечения.
Железобетонные плиты на деревянных балочных мостах становятся все более распространенным явлением на дорогах США и Канады. По данным университета штата Вирджиния, за последние 50 лет многие из 50 тысяч мостов в США с деревянными проезжими частями были заменены железобетонными плитами.
Одним, и самым важным, недостатком железобетонной плиты является значительная собственная масса, что сказывается на нагрузке на мост, особенно с увеличением перекрываемого пролета. В настоящее время существует ряд конструктивных приемов, таких как применение легких бетонов и другие мероприятия, существенно уменьшающие этот недостаток. Каркас из клееной древесины имеет вес почти в пять раз меньше, чем такой же каркас из железобетона. При этом на монтаж изделий из клееной древесины уходит в два раза меньше трудозатрат [3].
СТОИМОСТЬ СТРОИТЕЛЬСТВА
Экономическое сравнение в большинстве случаев является определяющим при выборе той или иной системы моста, материала, способов возведения и т.д.
Стоимость деревянного моста в современном исполнении составляет 2/3 стоимости-стального или железобетонного моста [4]. В случае железобетонного варианта почти 90% вложенных средств уходит в дорогостоящий железобетон и только 10% составляют другие статьи расходов. Применение пролетных строений из клееной древесины при уменьшении вложений на 34% позволяет создавать дополнительные рабочие места (фонд оплаты труда в 4 раза выше аналога) [5].
Самые последние расчеты, выполненные в 1992 г. в рамках программы «Развитие деревянных мостов» в Финляндии наглядно демонстрируют экономическую целесообразность использования железобетонной плиты, работающей совместно с ребрами из клееной древесины.
Рис. 1. Расход древесины на пролетное строение с деревоплитой проезжей части балочного моста для дорожного движения (ширина моста 4,5 м)
Fig. 1. Consumption of wood for a superstructure from a wood-lined roadway of a girder bridge for road traffic (bridge width 4.5 m)
Рис. 2. Расход древесины на пролетное строение с железобетонной плитой проезжей части балочного моста для дорожного движения (ширина моста 4,5 м)
Fig. 2 Wood consumption for a superstructure with a reinforced concrete slab of the roadway of a girder bridge for road traffic (bridge width 4.5 m)
Рис. 3. Расчетные стоимости пролетного строения балочных мостов для дорожного движения (ширина моста 4,5 м, стоимость покрытия не учитывается)
Fig. 3. Estimated costs of the span of girder bridges for road traffic (bridge width 4.5 m, cost of coverage is not taken into account)
На Рис. 1–3 приведены расходы древесины и расчетные стоимости пролетного строения автодорожных балочных мостов.
Расход клееной древесины на балки в случае железобетонной плиты меньше, чем у деревянной, и составляет 76% при пролете 20 м. На графиках, представленных на Рис. 3, показано уменьшение стоимости 1 м2 пролетного строения с железобетонной плитой по сравнению с использованием деревоплиты на 32,0–21,5% в пределах сравниваемых пролетов.
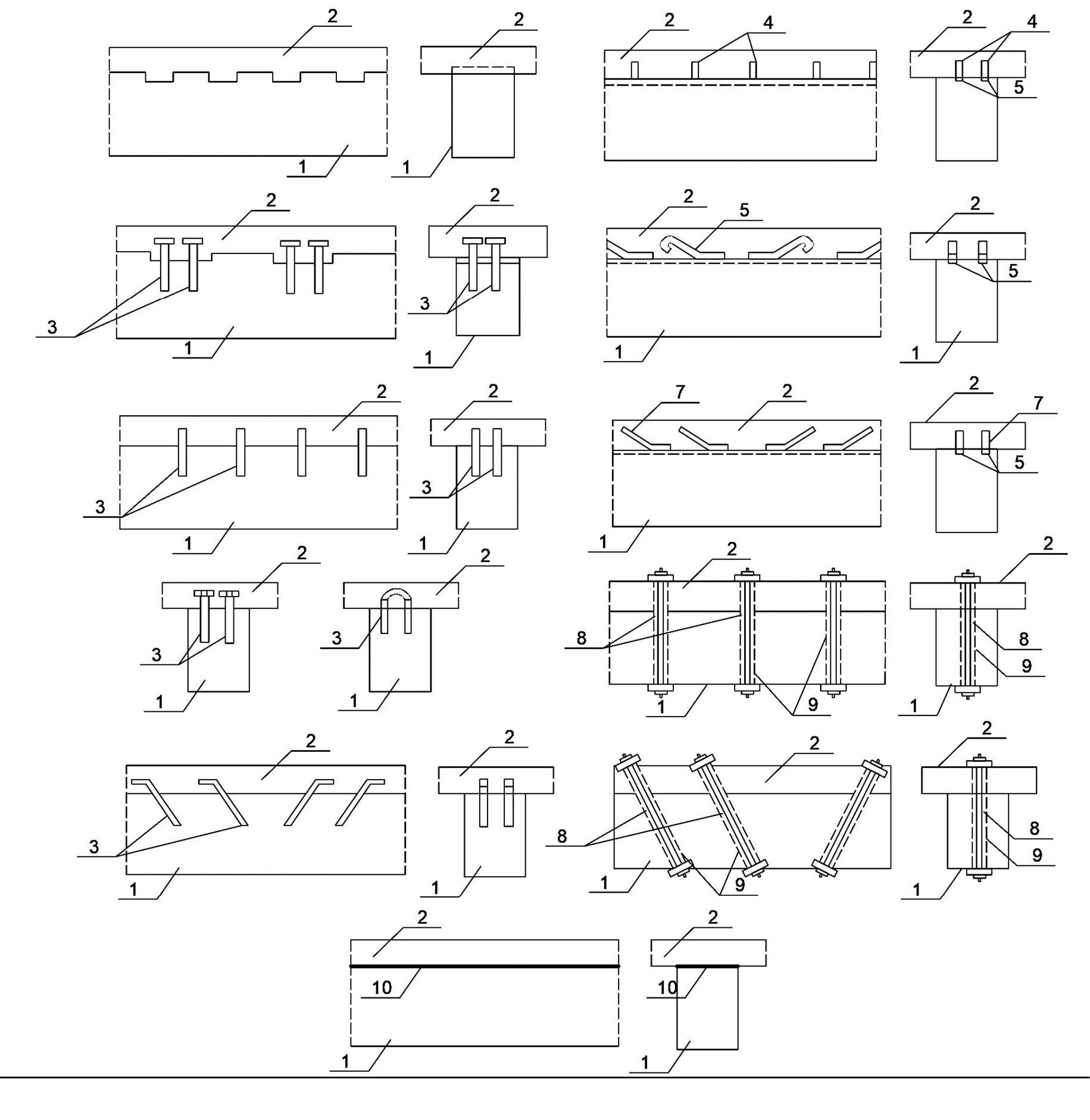
На Рис. 4 приведены типы соединений железобетонной плиты с деревоклееным ребром.
Рис. 4. Типы соединений железобетонной плиты с деревоклееной балкой: 1 – деревоклееная балка; 2 – железобетонная плита; 3 – стальной нагель; 4 – стальной стерженьковый упор; 5 – связывающая основа; 6 – одиночный стальной анкер; 7 – петлевой стальной анкер; 8 – напряженные болты или пряди; 9 – отверстие; 10 – клеевой шов
Fig. 4. Types of joints of reinforced concrete slab with a wood-glued beam: 1 – wood–glued beam; 2 – reinforced concrete slab; 3 – steel nagel; 4 – steel rod stop; 5 – binding base; 6 – single steel anchor; 7 – looped steel anchor; 8 – stressed bolts or strands; 9 – hole; 10 – adhesive seam
В 1967 г. Гипроавтотрансом, а в 1981 г. Союздорпроектом были разработаны типовые проекты пролетных строений с клееными балками для автодорожных мостов на дорогах IV–V категорий. Проектным институтом Гипроавтотранс были также разработаны типовые проекты деревянных балок длиной 12, 15 и 18 м со сборной и монолитной железобетонной плитой проезжей части.
Несмотря на рост применения клееной древесины в строительстве, в настоящее время число отечественных мостов, построенных из клееной древесины, не превышает сотни/нескольких десятков, а из клееной древесины с железобетонной плитой – единицы. Причинами этого явились дороговизна клееной древесины и низкое качество ее отечественного производства, вследствие чего пролетное строение не отвечает современным требованиям, предъявляемым к строительству.
Таблица. Основные свойства пролетных строений из клееной древесины, стали и железобетона
Table. Basic properties of spans made of laminated wood, steel and reinforced concrete
Параметры сравнения | Клееная древесина | Железобетон | Сталь |
Модуль упругости Е, | 80000–100000 (в зависимости от породы дерева) | Еs=2*106 Eb= 2,7*105 | 2,2*106 |
14–50 | 10–75 | 300–900 | |
350–460 | 2500 | 7700–7900 | |
Минимальная усадка, % | 0,5–1 | До 3 | 0,7–2,2 |
Антисейсмические свойства | Конструкции способны выдержать землетрясение до 9 баллов по шкале Рихтера | Конструкции способны выдержать землетрясение до 9 баллов по шкале Рихтера | Конструкции способны выдержать землетрясение до 9 баллов по шкале Рихтера |
Коэффициент теплопроводности, Вт/(м*°С) | 0,14–0,17 | 0,048–0,17 | 0,004 |
Срок службы пролетных строений, лет | 100 | 100 | 100 |
Стоимость материала, у.е. | 1 | 3,1 | 1,5 |
Постепенное накапливание дефектов или склонности к дефектам, начиная с уменьшения экологичности и прочностных характеристик материала из-за некачественного клеевого состава, используемого при изготовлении [6], нарушений технологии производства, хранения, транспортировки, монтажа клееных балок и, заканчивая часто несовершенствами конструкции проезжей части и режима эксплуатации, привели к интенсивному расслоению клеевых швов в первые годы эксплуатации мостового сооружения. Если к этому добавить, что стоимость 1 м3 клееной древесины превышала стоимость исходных пиломатериалов не на 70%, а в 2 с лишним раза и доходила до 300–500 р./м3 (в ценах 1983 г.), то понятно «прохладное» отношение к этому материалу. С другой стороны, в прежние времена существовали традиционные трудности любого внедрения в любой отрасли промышленности.
На семинаре мостовиков России в марте 1995 г. (Мамонтовка, Московской обл.) заместитель управляющего Федерального дорожного департамента России О.Н. Скворцов отметил необходимость изменения отношения к деревянным мостам. Он сказал, что одним из важных направлений отечественного мостостроения должно стать экономически обоснованное применение древесины в пролетных строениях мостов на железобетонных опорах.
Сопряжение и соединение различных частей конструкции не вызывает много затрат, что упрощает технологию ее изготовления.
Россия располагает примерно двумя десятками заводов и цехов клееных конструкций, занимает первое место в мире по запасам древесины, из них 44 млрд. м3 – спелая и перестойная. При ежегодном приросте 900 млн. м3 фактические заготовки снизились до 300 млн. м3, что связано с экономическими трудностями лесопромышленного комплекса.
На автомобильных дорогах нашей страны «значительная часть мостов была построена в 50–60-е годы. В настоящее время более 50% мостов не удовлетворяют современным нормативам по грузоподъемности и габаритам, требуют усиления и уширения» [7].
Очевидно, что часть этих мостов требует замены, и здесь вполне правомерно применение пролетных строений с балками комбинированного сечения из клееной древесины и железобетона.
ЗАКЛЮЧЕНИЕ
Основываясь на вышеперечисленных фактах, можно сделать вывод, что применение пролетных строений с балками комбинированного сечения из клееной древесины и железобетона является эффективным и рациональным решением, позволяющим не только увеличить срок службы пролетного строения, снизить расход материала, но и отсрочить появление дефектов, возникающих при эксплуатации пролетного строения, выполненного из древесины.
Сама клееная древесина может не только конкурировать с традиционными строительными материалами, но и превосходить их по целому ряду свойств и параметров. В строительстве является ценным материалом с точки зрения прочности, легкости, сейсмики и огнестойкости, отличных акустических свойств и эстетической привлекательности.
Авторы заявляют, что:
- У них нет конфликта интересов;
- Настоящая статья не содержит каких-либо исследований с участием людей в качестве объектов исследований.
The authors state that:
- They have no conflict of interest;
- This article does not contain any studies involving human subjects
Рекомендация
Кандидат военных наук, доцент ФГАОУ ВО «Санкт-Петербургский Политехнический университет Петра Великого» Алексеев Сергей Викторович рекомендует к публикации данный научный обзор.
About the authors
Alina V. Lunina
Peter the Great St. Petersburg Polytechnic University
Author for correspondence.
Email: a.luni02@yandex.ru
ORCID iD: 0009-0001-8405-3024
SPIN-code: 7999-8591
bachelor, Institute of Civil Engineering
Russian Federation, St. PetersburgEkaterina V. Kucheryavaya
Peter the Great St. Petersburg Polytechnic University
Email: yekaterina.kucheryavaya.02@mail.ru
ORCID iD: 0009-0003-1040-5079
SPIN-code: 7180-4449
bachelor, Institute of Civil Engineering
Russian Federation, St. PetersburgGleb A. Averchenko
Peter the Great St. Petersburg Polytechnic University
Email: averchenko_ga@spbstu.ru
ORCID iD: 0000-0001-8813-545X
SPIN-code: 1707-9958
senior lecturer, Institute of Civil Engineering
Russian Federation, St. PetersburgReferences
- Ivanova EK. Kleyenyye derevyannyye konstruktsii : opyt stroitelstva za rubezhom. Moscow: Gosstroyizdat; 1961.
- Kulish VI. Kleyenyye derevyannyye mosty s zhelezobetonnoy plitoy. Moscow: Transport; 1979. (In Russ.)
- Nikiforov EP. Kleyenaya drevesina: tekhnologiya izgotovleniya. svoystva, preimushchestva i nedostatki, oblasti primeneniya. Modern scientific researches and innovations. 2019;7(99):6. (In Russ.) EDN: TVDZCD
- Stukov VP. Konstruktivno-tekhnologicheskaya sistema i teoriya rascheta derevozhelezobetonnykh proletnykh stroyeniy balochnykh avtodorozhnykh mostov [dissertation] Arkhangelsk; 2012. (In Russ.) EDN: QHYAGB
- Utkin VA. Sovershenstvovaniye konstruktsiy proletnykh stroyeniy avtodorozhnykh mostov iz kleyenoy drevesiny [dissertation] Omsk; 2009. (In Russ.) EDN: NLCGSJ
- Ivanov AA. Tekhnologiya proizvodstva, svoystva, preimushchestva i nedostatki kleyenoy drevesiny. Modern scientific researches and innovations. 2021;6(122):2. (In Russ.) EDN: OEPPMS
- Tsukanov VP. Issledovaniye raboty kleyenykh derevyannykh balok avtodorozhnykh mostov s povyshennoy sdvigovoy prochnostyu v priopornykh zonakh [dissertation] Khabarovsk; 2003. (In Russ.) EDN: NHIRGD
- Trach EN, Gannenko LA, Kirilenko VF. The wooden glue structures of foreign modern pedestrian bridges. Vìsnik dnìpropetrovs’kogo nacìonal’nogo unìversitetu zalìzničnogo transportu. 2010;33:299-303. (In Russ.) EDN: QWXGSK
- Volkova KV. Modern problems and directions of development of construction of with wood concrete professional structures. In: Collection of materials of the III International Scientific and Practical Conference of students, postgraduates and young scientists “Siberian State Automobile and Highway University”. 2019 Feb 7–8, Omsk, Omsk: SibADI; 2019:164-168. EDN: REXJPB
Supplementary files








